Этап первый – закладка фундамента
После определения последовательности строительства — веранда своими руками из дерева возводится пошагово. Начать необходимо с основания террасы, которое представляет собой ленточный мелкозаглубленный или столбчатый фундамент.
Как правило, оба вида имеют достаточно широкое распространение при выполнении самостоятельного изготовления домовых пристроек. Рассмотрим особенности данных типов фундамента для будущей террасы.
Столбик за столбиком
Простым и менее затратным с точки зрения материалов и физических усилий является столбчатый фундамент веранды. Он представляет собой несколько отдельных опор прямоугольного сечения в горизонтальной плоскости. Для изготовления используют следующие материалы:
- кирпич керамический красный;
- блоки фундаментные бетонные;
- блоки строительные бетонные;
- кладочный песчано-цементный раствор.
Перед установкой под будущие столбики выкапывают ямы 0,6-1м. Глубина заглубления под опоры террасы зависит от качества почвы и массы будущего строения. Дно ям отсыпают песком и щебнем с промежуточным утрамбовыванием. Поверх отсыпки под основание террасы заливают бетонную подушку для выравнивания.
Деревянная веранда должна равномерно опираться на все элементы фундамента. Для этого столбы выводят на общий уровень по высоте. С этой целью можно использовать частично обрезанные блоки или кирпич, а также различную толщину швов. После установки всех опор для террасы их необходимо защитить от влаги. В этом случае используют готовую битумную мастику и рулонный гидроизолятор. Аналогично осуществляется и гидроизоляция оголовков столбиков под веранду.
Лента под террасу – плюсы и минусы
Ленточный вид фундаментов для террасы требует больших усилий при строительстве. Основные этапы:
- разметка ленты по периметру стен террасы;
- копка траншеи на глубину не менее 0,6 метра шириной около 30 см;
- установка опалубки для подъема ленты над уровнем почвы до брусовой обвязки веранды;
- выполнение отсыпки дна траншеи песком и щебнем;
- изготовление и установка армирующего каркаса из стальных прутьев;
- приготовление бетонного раствора в достаточном объеме, заливка ленты до верхнего края опалубки;
- гидроизоляция застывшей ленты с помощью готовых составов;
- засыпка траншеи грунтом.
Как видно из описания процесса, технология установки ленточного фундамента под террасу из дерева – процесс достаточно трудоемкий и длительный, требует более высокой квалификации, чем при монтаже столбчатого основания. В случае неправильного возведения или высокой подвижности грунта ленту может порвать и выгнуть, что обязательно отразится на всей конструкции.
Альтернатива остеклению
Шторы
Не всегда нужно так плотно защищаться от непогоды. Если вам позволяет климат, то достаточно использовать шторы. Правда стоить они будут также не дешево, т.к. материал должен быть плотным и тяжелым, желательно с водоотталкивающей пропиткой, устойчивым к выгоранию на солнце.
Популярные, но дорогие материалы:
- парусина;
- брезент;
- оксфорд;
- акриловое полотно;
- ПВХ полотно;
- органза;
- хлопок с пропиткой.
Если у вас остались однотонные старые шторы или даже тюль из квартиры, которые потеряли свой вид (т.к. выгорели на солнце по периметру окна, имеют затяжки или небольшие пятна), то вы можете их использовать для защиты и украшения дачной постройки:
Все перечисленные недочеты б/у тканей будут не заметны на улице из-за особенностей крепления: каждую штору следует драпировать и подвязать к своему столбу (стойке строения).
Для этой цели правда лучше использовать однотонные ткани пастельных тонов.
Отвязывать рекомендуется только очень тяжелые шторы, из материалов, которые мы перечислили в списке выше. Легкие ткани не рекомендуется отвязывать, т.к. они могут постоянно залетать в беседку и из нее, будут вам мешать и быстро истрепятся. Если ветер у вас бывает редко, то вы ничем не ограничены.
Панели с москитной сеткой
Данные панели могут быть раздвижными. Сама сетка достаточно плотная, чтобы защитить от косого дождика и отскакивающих брызг, пуха и другого летящего мусора, который может наносить ветром. Что уж говорить о прямом назначении таких сеток — защита от комаров и мух.
Изготовить такие панели можно самостоятельно, необходимо только сделать каркас, натянуть и закрепить на нем сетку.
Экономичнее покупать сетку в больших рулонах.
Этап второй – сооружение каркаса строения
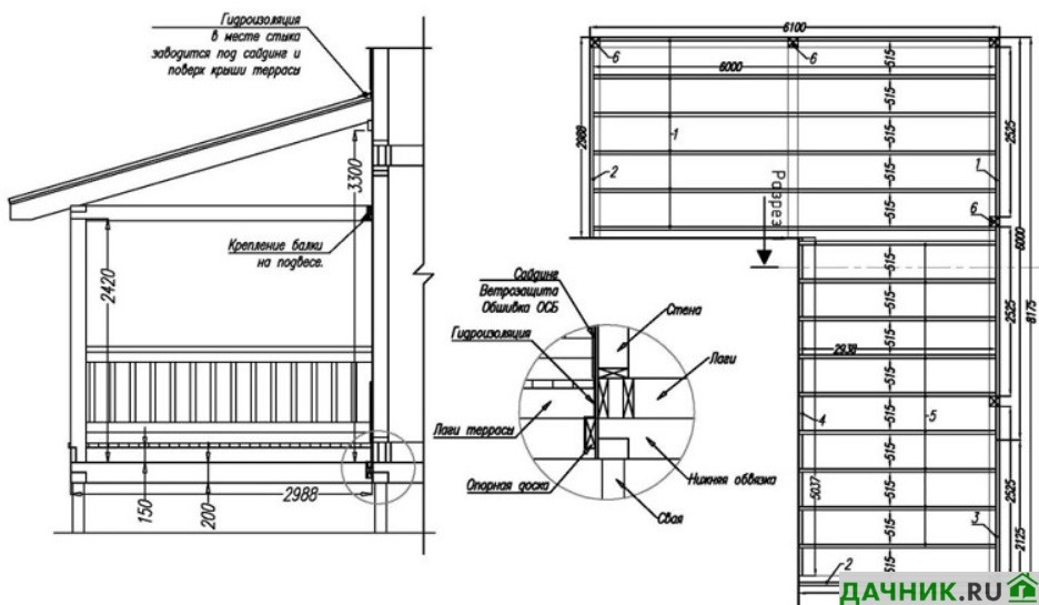
На готовый фундамент выполняется монтаж каркаса сооружения. Деревянная терраса изготавливается быстро даже в одиночку. Для работы потребуется строительный брус сечением 150х150 и 100х100 мм. Первый брус подойдет на нижнюю обвязку – основание пола веранды, второй – на стойки и опоры для перил.
Укладываем нижнюю обвязку
Брус сечением 150х150 укладываем на предварительно выстеленный рубероидом фундамент для террасы. Если размеры пристройки превышают 6 метров – стандартная длина пиломатериалов в нашей стране, придется сращивать элементы обвязки. Технология углового и продольного соединения бруса следующая:
- Отберите наиболее ровные, не поведенные пиломатериалы.
- На торцах разметьте запилы на половину толщины бруса. Длина будущего паза равна в нашем случае 150 мм.
- Пропилите брус по разметке с помощью ручного или механического инструмента – столярная ножевка, циркулярная или цепная пилы.
- Соедините детали паз в паз под углом или вдоль.
- Дополнительно усильте соединение, вбив по 2-3 гвоздя №150.
Во избежание возможного смещения каркаса террасы относительно основания (об этом стоит подумать на этапе возведения фундамента) в верхней части столбов или ленты оставляют несколько обрезков стальной арматуры диаметром 8 или 10 мм и длиной свободного конца 200-250 мм. Перед укладкой обвязки в точках выхода стальных стержней сверлятся отверстия большего диаметра, и брус укладывается на штыри, которые затем загибаются заподлицо.
После выполнения брусовой обвязки пола террасы по периметру, уложите аналогичным образом несколько поперечных брусков того же сечения, устанавливая в заранее размеченные и выпиленные пазы с шагом около 1 метра, скрепив их длинными гвоздями.
Устанавливаем стойки
Для опоры крыши веранды из дерева необходимо установить по внешним углам и вдоль длинной стороны, параллельной стене дома, несколько вертикальных брусков. Длина которых выбирается таким образом, чтобы высота крыши террасы от пола составляла не менее 2 метров, и соблюдался уклон кровли от основного строения.
Схема соединения обвязки и стоек
Если брус обвязки террасы разрешается не строгать, то стойки обязательно должны быть предварительно простроганы электрорубанком. Это позволит придать им более эстетичный вид и упростит дальнейшую отделку и обработку веранды. Крепить стойки к обвязке следует саморезами с использованием усиленных стальных уголков. В верхней части торцы бруса крепят к обвязке террасы, которая представляет собой элемент каркаса, служащий для увеличения прочности конструкции веранды.
Верхнюю обвязку лучше сделать из строганого бруса 100х100. Сборка осуществляется на земле подетально, после чего устанавливается на торцы стоек и крепится к ним. При этом необходимо убедиться в перпендикулярности вертикальных деталей в двух плоскостях. Для этого используют отвес или строительный уровень.
Постройте фундамент

Чтобы построить ленточный фундамент своими руками, выкопайте по размеченным меткам траншею запланированной глубины и ширины. Засыпьте и равномерно распределите по дну песочно-щебневую подушку и уложите сверху арматурный каркас.
Установите в траншее опалубку. Приготовьте бетонный раствор из гранитного щебня (5 частей), песка (3 части) и цемента (1 часть) и заполните ним опалубку.
Время застывания раствора определяет инструкция производителя к выбранному цементу с поправкой на температурные и погодные условия. Подождите, пока фундамент окончательно высохнет. Сыпучие или глинистые почвы под каркасной пристройкой потребуют дополнительного времени на усадку.

Разные проекты предусматривают различные способы, позволяющие совместить основание, на котором стоит дом, и новый, примыкающий к нему фундамент, несущий на себе каркасную постройку. Поэтому, устраивая опалубку под ленточный фундамент, обязательно предусмотрите деформационный шов в месте присоединения пристройки к дому. Таким способом защищают основание и стены веранды от образования трещин при сезонных подвижках грунта.
Строительство фундамента может включать в себя и установку опор под половые лаги. Отметьте расстояние в 1,3-1,5 м, чтобы сделать разметку под ямы для опор. Между лагами достаточно оставить промежуток в 0,9 м. Выкопайте ямы и засыпьте дно слоем песка (не меньше 0,1 м).
Для гидроизоляции все поверхности основания оберните рубероидом (рубемастом) в два слоя. После этого нужно сделать раствор и заполнить бетоном ямы с установленными в них опорами. Фундамент застынет и надёжно закрепит опоры.
Подготовительный этап

Чертеж распашной конструкции
Вначале нужно нарисовать схему предполагаемого каркаса. Это необходимо для составления общей картины объема работ, составления сметы, приобретения строительного материала и подготовки необходимой базы инструментария.
Зачастую ворота делают распашного типа с несколькими створками. Основной материал – сосна. Это дерево имеет малый вес, не подвержено воздействию окружающей среды. При составлении схемы необходимо правильно совместить все составляющие каркаса и конструкции в целом. Иначе в последующем может возникнуть проседание и перекос.
Для изготовления ворот из дерева необходим следующий материал:
- деревянный брус 7 Х 5 см и 5 Х 5 см (центральная перекладина створки);
- доска обрезного типа (толщина 2,5 см, ширина 1 см);
- балка из дерева для стоек – 2 штуки, нагеля из дерева, 4 петли;
- лобзик электрический, рубанок, молоток, сверла, дрель, шуруповерт, рулетка, ножовка для дерева, измерительный угол для прямого угла;
- лак для покрытия дерева, растворитель;
- уровень, отвес, стамеска, саморезы, наждачка, кисточка;
- строительный материал (щебенка, песок, цемент).
Совет: перед покупкой деревянной основы следует учесть, что высота ворот должна быть не менее 1200 мм. Для устойчивости деревянная опора устанавливается в грунт на 1 тыс. мм.
Из дерева
В качестве возможного примера я приведу беседку 3 на 3 метра из бруса.
![]()
Если вам понравится процесс, описанный в данной публикации, то вы сможете со знаниями конструкции уже непосредственно переходить к изучению строительства. В конце текста я дам несколько ссылок на другие постройки.
Фундаментное основание
Деревянная беседка обязательно должна иметь под собой прочное и ровное основание, которое с годами не будет серьезно деформироваться и косить всю постройку. Наиболее используемые виды основания:
- Фундаментные блоки 20 на 20 на 40 см.
- Залитые в грунт столбы из бетона 20 на 20 см.
- Буронабивные или винтовые сваи.
- Ленточное.
- Монолитное.
Бывают проблемы с грунтом и подтопления весной, в результате чего уровень беседки нарушается и она может ползти. Но это единичные случаи, о которых хозяева дачного участка должны знать и учитывать их в строительстве.
Нижняя обвязка
Поверх фундамента обязательно укладывается слой гидроизоляции (рубероида). Он защищает дерево от влаги и дальнейшего гниения.
Нижняя обвязка с рубероидом
На листы рубероида укладывается нижняя обвязка, которая чаще всего делается из того же материала, что и столбы. Универсальный вариант — брус 100 на 100 мм. Крепление осуществляется в полдерева.
Столбы
Основу каркас постройки составляют опорные стойки, которые должны быть массивными и надежными. Брус 100 на 100 мм вполне подходит для этой задачи.
Столбы устанавливаются по периметру постройки, в зависимости от её конструкции, после чего выравниваются под угол 90 градусов и крепятся на металлические уголки или длинные саморезы.
Верхняя обвязка
Поверх столбов устанавливается вторая обвязка, которая будет служить основание для стропильной системы крыши.
Чаще всего используют тот же материал, что и в нижней обвязке, то есть брус 100 на 100 мм, но в некоторых ситуациях можно сэкономить и установить более простой материал (например, доска «пятидесятка»).
Крыша
Вариантов для крыши немного, но решение о выборе всё равно принимать придется. Желательно это сделать на этапе проектирования беседки, а не когда пойдёт дождь, а у вас не будет досок, чтобы закончить строительство.
- Односкатная.
- Двускатная.
- Шатровая (4 ската).
- Вальмовая (4 ската).
- Шестискатная.
- Восьмискатная.
- Круглая.
Наиболее простые варианты это один и два ската. На них проще всего укладывать кровлю, они не требуют много строительного материала. Да и вообще, выглядят вполне сносно. Поэтому если вы начинающий строитель, то мы рекомендуем отдать своё предпочтение одному из этих двух вариантов.
Кровля
В качестве обшивки для крыши вариантов также немного, но зато здесь можно серьезно сэкономить как на трудовых, так и финансовых ресурсах.
- Профнастил, металлочерепица, ондулин — дешёвые сами по себе и не требующие дополнительных контрреек и обрешеток.
- Мягкая черепица — более дорогая и требует ровной поверхности. Сама по себе она очень крутая, да и укладывается практически без остатка, но денег всё-таки стоит.
Пол
Здесь думать сильно не надо. В качестве половой доски прекрасно подходит доска «сороковка», которая используется повсеместно среди дачников и профессиональных строителей.
Укладка половой доски
В 99% на пол идёт сосна, но если вы хотите крепкую и твёрдую основу под ногами, то можно использовать лиственницу. Она будет стоить дороже, но качество у неё заметно выше.
Обшивка стен
Здесь всё зависит от задумки хозяев. Я могу исходить только из бюджета, поэтому список стеновых обшивок выглядит следующим образом:
Обшивка ОСП
- Профнастил.
- Деревянная обрешётка.
- Ориентированно-стружечные плиты.
- Поликарбонат.
- Обрезная доска.
- Сайдинг.
- Вагонка.
Проще всего всё обшить профлистом и забыть про гниение и коррозию. Но вид будет средненький. Если использовать дорогущий блок-хаус, тогда периодически вам нужно будет подкрашивать материал, но зато выглядеть он будет исключительно красиво.
Разновидности крыши
Крыша беседки конструируется исходя из её формы.

Прямоугольные и квадратные беседки наиболее часто сооружаются с плоской, одно- и двухскатной крышей. Если позволяет бюджет конструкция может быть сооружена с шатровой или вальмовой крышей, но такой вариант требует наличия профессиональных строительных навыков и опыта.




Если беседка закрытого типа и в ней предполагается использование печи – следует предусмотреть дымоход. Он может выходить наружу через проём в стене, центр или скат кровли.

В качестве кровельного материала наиболее часто используют:
- черепицу;
- профнастил;
- поликарбонат;
- брезент.




Все эти материалы имеют лёгкий вес, доступны, их легко демонтировать в случае негодности с последующей заменой.

Самым простым и доступным вариантом является плоская крыша.

Первый этапом сооружения крыши является установка на верхнюю обвязку стропил – это деревянный доски, которые располагаются на обвязке равномерно под прямым углом с шагом 9 сантиметров.

На втором этапе сооружается обрешётка с помощью досок, устанавливаемых перпендикулярно стропилам, равномерно с шагом 30 сантиметров.

Все элементы крыши скрепляются с верхней обвязкой и между собой с помощью саморезов и металлических уголков. В результате получается прочная и надёжная конструкция, способная выдержать вес кровли и зимних осадков.

На третьем этапе конструкция покрывается слоем гидроизоляции и после – кровельным материалом.

Фундамент для пристраиваемой конструкции
В качестве основания для сооружения чаще всего используют ленту или столбчатый фундамент, каждый их них обладает определёнными преимуществами и недостатками.
Ленточный фундамент
Представляет собой замкнутый контур из железобетона, возводимый под всеми несущими стенами постройки, который передаёт нагрузку от них на грунт. Он позволяет возводить деревянные, кирпичные и монолитные строения.

Рассмотрим поэтапное возведение:
- На выделенном под строение участке делается разметка с помощью колышков и веревки;
- По разметке для фундамента под пристройку к дому своими руками выкапывается траншея, зависит её глубина от залегания основания дома. Ширина нужна больше, чем толщина укладываемой стенки на 10-15 см;
- В траншею засыпается песчаный пласт в 10-12 см и утрамбовывается;
- На дно выкладывается гидроизоляция, которая выступает на поверхность почвы на 40-45 см;
- На гидроизоляцию устанавливается арматурная решётка, которая соответствует форме возводимого фундамента по ширине и высоте;
- Ленту заливают бетоном на ⅓ высоты, когда данный слой застынет, то укладывается второй на ½ оставшейся высоты;
- После заливки 2-го слоя устанавливается опалубка из древесины для возведения надземной части ленточного основания (цокольной части). Гидроизоляционный материал запускается внутрь опалубки и фиксируется к её стенкам;
- Опалубка заполняется бетонной смесью, в процессе укладки уплотняется возвратно-поступательными движениями куском арматуры или вибратором для предотвращения образования в нём пор. После заполнения всей опалубки поверхность бетона разравнивается по уровню;
- Далее бетон должен высохнуть и набрать 100%-ю прочность через 28 дней. Первые 3 дня его нужно смачивать через 2-3 часа водой. Затем он поливается 3 раза в сутки на протяжении 25 дней.
После затвердения основания опалубка снимается, поверхность покрывается снаружи материалами для гидроизоляции.

Столбчатый фундамент для пристройки к дому своими руками
Его применяют при постройке веранд и летних кухонь, обустраивают из красного кирпича либо бетона. На столбы в основном устанавливают каркас из древесины, на него настилают сам пол.
Возводится основание таким образом:
- Размечается выделенный для строительства участок. Столбы устанавливают с шагом 1,5 м;
- Для каждого столбика копается отдельная 50х50 см ямка с углублением на 50-60 см. К верху она должна расширяться на 10 см со всех сторон;
- На дно ямы насыпается подушка из слоя песка и щебёнки. Затем её дно и стенки покрываются гидроизоляцией;
- Если опоры из кирпича, то на дно ям укладывается слой раствора, на который после застывания кладётся первый ряд кирпича;
- Если опорные столбики из бетона, то в ямы устанавливают арматуру и опалубку на высоту опоры. Гидроизоляция запускается внутрь опалубки и крепится к ней;
- В установленную опалубку слоями заливают бетон. Причем каждый слой раствора должен нормально схватиться;
- Верх столбика разравнивают, бетон увлажняется водой до набора им марочной прочности;
- Опалубка демонтируется, столбы покрываются гидроизоляционным материалом (обмазываются битумной мастикой, на которую наклеивается рубероид);
- Пустоты между стенками ямы и опорой засыпаются перемешанным с щебнем грунтом, который плотно утрамбовывается.

На верх столбов укладывается рубероид для укрытия от воздействия влаги уложенных на них деревянных брусьев.
Чтобы пристроенная конструкция не отошла со временем, возводят её с небольшим наклоном в направлении дома. Уклон стенок по вертикали закладывается в 1 см на каждый метр высоты пристроя. Чаще всего уклон закладывается на этапе возведения основания.

Проведение строительных работ
Если вы хотите организовать пристройку к своему дому, вам нужно учитывать некоторые особенности, наличие которых позволит это осуществить. Например, если основная крыша выступает менее чем на пять сантиметров, это не есть хорошо.
В таком случае вам придется дополнительно искать пути защиты односкатной крыши от дождевой воды и снега.
Стропила должны опираться о стену. На ней закрепляют в горизонтальном положении мауэрлат. Под ним подразумевают самый крепкий и толстый брус
Его габариты напрямую зависят от угла наклона крыши и тяжести кровельных материалов.
Очень важно, чтобы мауэрлат был надежно прикреплен к стене. От него зависит, несколько качественно будут зафиксированы стропила
Закреплять последние нужно в специальные пазы.
Их вырезают в мауэрлате задолго до того, как его крепят к стене. Желательное расстояние — около 60-80 см.
На этапе укладки стропил нужно следить, чтобы все они не отклонялись от заданного угла. В противном случае вашу конструкцию может перекосить, следовательно, туда будет постепенно затекать вода, а это будет разрушать крышу.






После следует этап, на котором укладывается гидроизоляция. При слишком большой длине стропил, они дополнительно усиливаются опорами. А поверх них кладется любой гидроизоляционный материал.
Согласно мнению специалистов, желательно соединять их внахлест. Каждый стык должен быть надежно проклеен.

Последними этапами можно назвать укладку обрешетки и монтаж кровли.






Половое основание каркасной пристройки
На ленточный фундамент можно класть любое половое покрытие, как деревянное, так и бетонное. На столбчатом основании возможно обустройство исключительно деревянных полов.
Бетонный пол
После обустройства ленточного основания по периметру каркасной постройки внутри на глубину 30-35 см необходимо выбрать грунт. На дно котлована засыпается песок, щебенка либо керамзит и осуществляется тщательная трамбовка. Толщина подушки – 20 см.
Далее на песчано-щебневую подушку укладывается армированная решетка и выполняется полноценная бетонная стяжка. Поверхность делается под строительный уровень идеально ровной.
В качестве финишного покрытия можно использовать деревянные полы, ламинат или керамическую плитку.
Деревянный пол
Для монтажа деревянного пола на столбчатый фундамент предварительно монтируются массивные балки, выполняется гидроизоляция. Брусья связывают с фундаментом с помощью анкеров или прочих надежных крепежей.
Сверху на основные балки набиваются лаги, осуществляется их утепление и кладется финишное напольное покрытие.
Все элементы конструкции из дерева обязательно обрабатываются защитными пропитками.
Составляем проект пристройки
Прежде чем приступить к строительству веранды из дерева и любых других материалов, стоит тщательно проработать проектную документацию. Что позволит предварительно рассчитать все необходимые материалы, определиться с формой будущего строения, избежать возможных ошибок при строительстве. Даже если вы не обладаете необходимым уровнем черчения или подобными инструментами, рекомендуем выполнить простейшие эскизы будущей постройки с указанием ее размеров.
Пользователи часто ищут:
- Ограждение террасы из дерева
- Веранда из пеноблоков своими руками
- Веранда пристроенная к дому
Во время составления проекта следует продумать всю последовательность работ, наиболее оптимальные приемы для ее выполнения. Аналогично следует определиться, с необходимым для строительства террасы, оборудованием и инструментами.
Необходимые материалы и инструменты
Всех мучает вопрос, с чего начать строительство беседки своими руками, но строительство беседки не представляет особого труда, при условии что вы используете правильные материалы и у вас готов план. Чтобы беседка полностью соответствовала вашим вкусам и потребностям, вы должны с ответственностью подойти к процессу планирования и составления проекта. Вы должны заранее решить, каковы должны быть ее размеры, хотите ли вы настелить здесь пол, установить мангал. Вариантов множество, поэтому мы рекомендуем вам потратить некоторое время на планирование. Однако следует помнить, что каждая дополнительная функция подразумевает дополнительные расходы, поэтому здесь необходимо выдержать баланс между вашими желаниями и возможностями.
На подготовительной стадии следует определиться и с дизайном вашей будущей беседки. Тут тоже немало вариантов: это может быть, например, восьмигранная конструкция или достаточно простая квадратная. В данной пошаговой инструкции мы покажем вам, как создать свою собственную садовую беседку всего за пару выходных дней, не потратив при этом слишком много денег. Строительство деревянной беседки – несложная задача, при условии что вы знакомы с основами деревообработки.
Чтобы построить беседку, вам потребуется следующее:
| Материалы | Инструменты |
|---|---|
| A – Бетонная опора (фундамент): трубчатая опалубка (4 штуки), регулируемые анкеры (4 штуки); | Циркулярная пила, пила для резки под углом; |
| B – Периметр обрешетки пола (нижняя обвязка): брус 5х15 см длиной 300 см (2 штуки), брус 5х15 см длиной 307.5 см (2 штуки); | Дрель и сверла; |
| C – Средняя балка каркаса пола: брус 5х15 см длиной 300 см (1 штука); | Молоток, уровень, столярный карандаш, рулетка; |
| D – Лаги пола: брус 5х15 см длиной 148.5 см (16 штук); | Бур для рытья ям под столбы; |
| E – Распорки для лагов пола: брус 5х15 см длиной 36.5 см (18 штук); | Лестница; |
| F – Деревянные стойки: брус 10×10 см длиной 270 см (9 штук); | Защитные перчатки, очки. |
| G – Верхняя обвязка: брус 10х10 см длиной 300 см (4 штуки); | |
| H – Угловые стропильные ноги: брус 5х10 см длиной 255 см с отпиленными под углом 64º концами (4 штуки); | |
| I – Вспомогательные стропильные ноги: брус 5х10 см длиной 197.5 см с отпиленными под углом 55º концами (4 штуки); | |
| J – Нарожники (короткие стропильные ноги): брус 5х10 см длиной 105 см (8 штук); | |
| K – Кровельные листы: 12 мм фанера, 18 кв.м; | |
| L – Кровельная изоляция: рубероид, 18 кв.м; | |
| М – Черепица: битумная черепица, 18 кв.м; | |
| N – Половые доски, 10 кв.м; | |
| O – Декоративные ограждения: нижние и верхние перила 5×10 см; балясины 5×5 см; | |
| цемент, песок, щебень; | |
| 6 см шурупы с квадратной головкой для закрепления стоек; | |
| 10 см шурупы для крепления брусков (стропил, перил и т.д.); | |
| Металлические уголки (угловые скобки) для закрепления брусков; | |
| 6 см саморезы для фиксации досок пола, балясин, кровельных листов и т.д.; | |
| 15 см шурупы для крепления стропил; | |
| 1 см кровельные гвозди. |
Схема квадратной беседки
Строительство беседки из дерева своими руками – достаточно сложный проект, но даже любитель сможет справиться с этой задачей, если будет использовать правильно составленный план и подходящие материалы и инструменты. Вам предстоит установить несколько стоек, настелить пол, сделать крышу и перила. На первый взгляд это может показаться очень сложным, но не стоит пугаться: для достижения цели вам следует соблюдать нашу пошаговую инструкцию и быть очень внимательным в работе.
Совет: В самом начале рассчитайте необходимое вам количество материалов, иначе вы потратите много времени на бесконечные хождения в строительный магазин. Убедитесь, что используемые вами электроинструменты находятся в хорошем техническом состоянии, а их лезвия достаточно острые.
Возможные ошибки
Достраивать и перепланировать уже существующее сооружение всегда сложнее строительства «с нуля», поэтому стоит ещё раз обратить внимание на возможные ошибки в процессе возведения каркасной пристройки. Первая и главная заключается в том, что многие неопытные строители надеются на заводскую обработку всех пиломатериалов
Однако это неправильно, все элементы каркаса перед сборкой нужно хорошо просушить и обработать огнебиозащитными пропитками. Оконные рамы и двери нужно устанавливать строго по уровню и закреплять их на уже установленные вертикальные стойки, то есть размеры всех проёмов необходимо просчитать ещё на этапе планировки
Первая и главная заключается в том, что многие неопытные строители надеются на заводскую обработку всех пиломатериалов. Однако это неправильно, все элементы каркаса перед сборкой нужно хорошо просушить и обработать огнебиозащитными пропитками. Оконные рамы и двери нужно устанавливать строго по уровню и закреплять их на уже установленные вертикальные стойки, то есть размеры всех проёмов необходимо просчитать ещё на этапе планировки.
Беседка с полом или без
Беседки монтируют на земле и на фундаменте – в зависимости от материалов и цели. Например, пластик ставят только на землю, а тяжелый кирпич – только на подготовленное основание. А вот с деревом и металлом есть варианты, в которых мы сейчас разберемся.
Если ты устанавливаешь беседку прямо на землю, обязательно нужно защитить ее от влаги. Иначе дерево будет гнить, а железо проржавеет, потому что сырая почва оказывает агрессивное воздействие.
Фото: dachi.guru
Для легких каркасных конструкций подходит столбчатый фундамент из бута или кирпича. Можешь воспользоваться готовыми фундаментными блоками – это еще быстрее и проще. А вот для капитальной каменной или кирпичной постройки придется заливать ленточный фундамент глубиной 20-30 см.
На пол укладывай доски, но сначала проложи слой гидроизоляции и пенопласта. Более долговечной и надежной будет морозостойкая напольная плитка. В открытой беседке сделай небольшой скат за край, чтобы влага скатывалась на землю и не скапливалась на полу.
Фото: gramhum.com
Выберите материал для пола: дерево или бетон
Обдумайте и решите, какому полу для веранды отдать предпочтение – деревянному или бетонному, проекты могут быть самыми разными. Начните строительство с настила чернового пола. По бокам половых лаг уложите черепной брусок 5,0х5,0 см, а на него настелите обрезные доски. Покройте доски двумя слоями пергамина, проложив между ними утеплитель. Завершая строительство пола, уложите поверх чернового пола чистовой.

Для деревянных полов хорошим вариантом будет фрезерованная доска, удобная для вентиляции и циркуляции воздуха, а также шпунтованные фальцованные доски, которые укладываются с учетом разнонаправленности годовых колец на древесине. Бетонный пол делается послойно: изоляция, утеплитель и бетонная стяжка.
Если пристройка планируется как жилое помещение, установите систему «тёплые полы» – электрическую или водяную. В качестве напольного покрытия для пристройки подойдёт линолеум, ламинат, плитка, щитовая паркетная доска или паркет.
Создание каркаса из дерева
Установка штакетин
Каркас для стандартных ворот из дерева – стандартный короб, имеющий четыре стороны. При размере проема для ворот 3 Х 5, каркас должен быть 3 Х 4. Дерево для него выбирают устойчивое к изменениям погодных условий. Каркас делают меньше проема ворот на 20 − 30 мм для учета места под петли и с учетом, что дерево в дальнейшем станет шире при раскачке ворот.
Для начала необходимо сделать заготовки из деревянного бруса. Они должны быть определенного размера. Для створки ворот нужен один брус для верхней части и один для нижней, несколько брусков для соединения середины, несколько для боковых стоек. Верх всех деталей нужно обработать рубанком и покрыть антисептическим средством, чтобы избежать гниения их в дальнейшем.
Чем прочней будет монтаж всех деталей, тем прочней станет деревянное изделие в целом. Для крепления каркаса понадобится нагель из дерева. Каркас из дерева должен иметь в местах установки крепежа просверленные насквозь отверстия. В них помещают обработанные эпоксидным клеем, деревянные нагели. Они необходимы для жесткости конструкции. Усилить крепление необходимо саморезами. Каркас имеет различные угловые соединения:
- монтаж на «ус» − шипом сквозным либо глухим, нагелями, плоским и открытым шипом, вставными шипами − плоским глухим либо открытым;
- шплинтовое;
- при помощи клея.
На каркас в центре закрепляют брус, чтобы с его помощью соединить обшивку. В угловых частях каркаса устанавливают укосы – брусья длиной 30 − 40 см, имеющие срезы в 45на конце. Укосы на торцы брусьев закрепляют саморезами.
Важно учесть, чтобы при состыковке створок ворот, обшивочные доски были больше, чем каркас на 150 − 200 мм. Каркас по высоте рассчитывают с учетом этих нюансов
К примеру, ворота в готовом виде имеют высоту 2 тыс. мм, тогда стойки сбоку должны иметь высоту 1600 − 1700 мм.
Разновидности беседок
Беседка должна гармонично вписываться в общий вид участка. Для этого она должна быть сооружена из материалов, сходных по внешнему виду с основным строением участка – домом. Площадь беседки не должна превышать 10% от площади участка.

При разработке конструкции беседки следует опираться на её предполагаемую функциональность и конструктивные особенности. Следует учесть:
- сезонность использования беседки: летняя, летняя и демисезонная, круглогодичная;
- основной материал конструкции: дерево, кирпич, металл, поликарбонат;
- форма – может быть самой разнообразной, от овальной или круглой до прямоугольной или многоугольной;
- площадь сооружения;
- оборудование, которое предполагается установить в беседке.




В первом случае строительные работы начинаются с возведения каркаса для последующей отделки, который возводится на дренажной песчано-щебневой подушке, а во втором – с сооружения фундамента.

Установите стены
Собрав каркас, утеплите стены, чтобы пристройка была комфортной для проживания. Даже для веранды не следует игнорировать вопрос о гидро- и пароизоляции. Утеплитель пергамин или пенофолуложите зеркальной стороной в сторону предполагаемого появления влаги и закрепите длинными саморезами. Утеплить потолок веранды можно керамзитом, насыпав поверху слой 10-12см.

Минеральные плиты, пенополистирол, жидкие утеплители эковата и даже древесные опилки также с успехом используются как терморегуляторы, а для защиты от ветра допускается использование традиционного рубероида или того же пергамина.
Выполните черновую обшивку стен, используя листы ЦСП, ОСБ или СМЛ. Такая щитовая прокладка имеет преимущества цельного покрытия. Экономвариантом для наружной обшивки веранды может послужить обрезная доска «25», а изнутри дом лучше отделать вагон кой, которая прослужит несколько десятилетий.
Стены веранды должны представлять собой «пирог» с чередованием внутренней обшивки, воздушного зазора в 1-2см, пароизоляции, слоя утеплителя, ветроизоляции и внешней отделки
Особое внимание уделите местам, где края каркасных стен примыкают к дому
Используйте в таких местах джут (конопляный или льняной, но без войлока, чтобы не завелась моль) или жидкие утеплители в виде застывающей пены. Установите двери, окна, подоконники, плинтуса, наличники и т.д., застеклите окна, покройте деревянные поверхности лаком или краской.


























