Выбор материала для ковки ножа
В машинах и устройствах различного назначения, используются цепи для передачи механических сил на связанные агрегаты. Она несёт немалые физические нагрузки. Выдержать которые способна цепь, изготовленная из прочных сплавов. Клинок, выполненный из такого металла, поразит не только красотой узора, но и практичностью.
Процесс изготовления – не из простых, необходимо запастись терпением. Опыт работы ковки металла также необходим. Велосипедная или автомобильная цепи имеют различные составы металла. Зависит от испытываемой нагрузки используемого «донора».
Профессиональные ножеделы советуют воспользоваться прокладкой высоколегированной пластиной промеж двух обкладок из цепей. Своеобразный «бутерброд» сваривается кузнечной сваркой, и пакет из металлов даст в результате – отличные режущие качества и эстетическую привлекательность изделия.
Какая бензопила лучше – типы мощности
Важно усвоить, что выбор бензопилы зависит не от показателей в графе «мощность», а от личных «лесорубных» потребностей покупателя. Для эпизодической пилки дров потребуется одна пила, а для постоянного распила мерзлых корневищ – совсем другая
Все выпускаемые (и продаваемые) бензопилы делятся на три производительных типа:
- Бытовые модели. Легкие и компактные, ими можно орудовать одной рукой. Удобны для монтажных условий, в том числе при работе на высоте – с лестницы, крыши дома и т.п. Время работы бытовых пил ограничено 40-50 минутами в день, в том числе не более 5-7 минут в непрерывном режиме. Полный ресурс работы до капитального ремонта в среднем составляет 500-600 моточасов;
- Полупрофессиональные пилы. Обладают значительным ресурсом и средней мощностью, способны валить лес по 4-5 часов в сутки. Непрерывно функционируют до 1 часа (после чего необходим технический перерыв для остужения трущихся частей на 15-25 минут). Ресурс работы – порядка 1.000 моточасов;
- Профессиональные модели. Диапазон их мощности должен быть не меньше 2.5 кВт, есть пилы и на 6 кВт. Полный временной ресурс использования профессиональных пил достигает 2.000 – 2.500 моточасов, они способны валить вековой лес долгими часами в любых погодных условиях. При обслуживании требуют недюжинного физического здоровья и навыков опытного лесоруба.
Любая ручная бензопила прослужит дольше, если ее беречь, грамотно использовать и своевременно обслуживать. Показатель полного ресурса работы является ориентиром и вполне может быть увеличен на сотни моточасов, как и производственные возможности бюджетных моделей.
На что обратить внимание
Разумеется, внедрять подобные ноу-хау следует с большой осторожностью, руководствуясь здравым смыслом и соблюдая технику безопасности. Нужно иметь в виду, что различные насадки могут сокращать ресурс мотора бензопилы, к примеру, из-за нештатных режимов работы (долгое время на повышенных оборотах). А, допустим, эксплуатация приспособлений типа насадки-бензореза с абразивным кругом способствует быстрому засорению воздушного фильтра цепной пилы
Также не забываем про киловатты и лошадиные силы. Бензопила должна обладать достаточной мощностью, чтобы справиться с поставленной задачей
А, допустим, эксплуатация приспособлений типа насадки-бензореза с абразивным кругом способствует быстрому засорению воздушного фильтра цепной пилы. Также не забываем про киловатты и лошадиные силы. Бензопила должна обладать достаточной мощностью, чтобы справиться с поставленной задачей.
Источник
Принцип создания мопеда из бензопилы
На сегодняшний рынок техники производители поставляют различные приспособления, приставки, моторчики для любых переделок и усовершенствований всевозможных агрегатов в совершенно неожиданные конструкции. Поэтому для желающих по-быстрому оснастить свой велик мотором и придать ему соответствующее ускорение, возможен вариант приобретения готового комплекта. В соответствии с предлагаемой схемой на велосипед устанавливается движок – и мопед готов.
Суть переделки заключается в монтаже силовой установки на велосипед. Следует учитывать, что мощность устанавливаемого двигателя от мотопилы должна быть ориентировочно 2 л.с., поскольку менее слабый мотор не сдвинет велосипед с места, а слишком мощный будет излишним.
Ремонт бензопил своими руками: система смазки
Как правило бензопилой работают в далёких от чистоты условиях. И наиболее высоким нагрузкам при этом подвергается как раз пильная цепь. Её преждевременному износу препятствует система смазки инструмента, которая снижает разрушительный эффект нагрева и трения. Это не только увеличивает рабочий ресурс конструктивных узлов бензопилы, но и предотвращает растяжение цепи. Поэтому контроль над процессом смазки должен выполняться постоянно.
Бензопилы снабжаются масляным насосом, который забирает смазку из бака и подаёт его на цепь. Её конструкция включает специальные звенья – хвостовики. Проходя звёздочку шины они захватывают масло и распределяют его по всей длине цепи. Нижняя часть хвостовиков выполняется в форме крюка. Это позволяет снизить расход и потери смазочного материала. Для дополнительного удержания последнего хвостовики снабжаются дополнительными каналами и отверстиями. В распределении смазки также участвуют другие звенья пильной цепи, на которых для этой цели выполняются углубления особой формы.
Проверку качества работа системы смазки бензопилы провести несложно. При разгоне пильной цепи микроскопические частицы масла образуют след на поверхности обрабатываемого материала. Отсутствие такового говорит о том, что смазка на цепь не поступает. И наоборот, если при выключенном моторе смазка с неё буквально капает, это свидетельствует о необходимости прочистки паза шины, конструктивных отверстий и каналов цепных звеньев и регулировке масляного насоса .
Перед покупкой и установкой новой цепной гарнитуры следует убедиться в том, что система смазки бензопилы способна с ней справиться. Для улучшения же процесса смазки можно использовать современные масла на растительно-полимерной основе.
Как сделать лебедку и пилораму из бензопилы своими руками
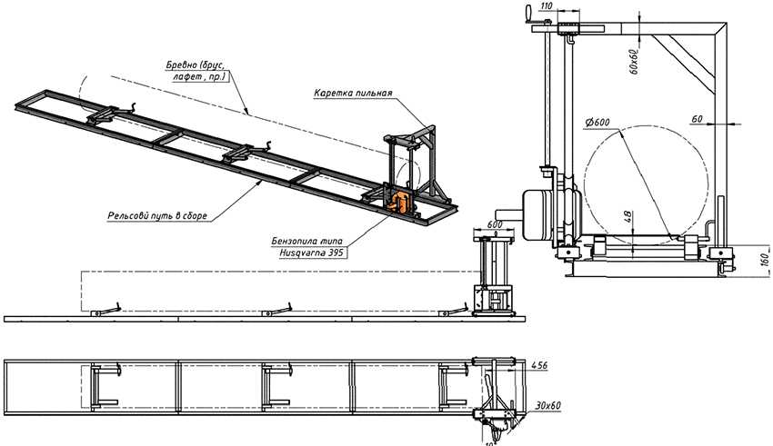
Самоделки из «Урала» часто помогают и в строительстве. Так, при возведении зданий из цельного леса приходится распускать бревна на брус. Пилорама из бензопилы «Урал» дает возможность выполнить это действие максимально быстро, аккуратно, сохраняя точность реза. Главное преимущество – отсутствие необходимости выполнять какие-либо сложные переделки. Приспособление просто требуется надежно закрепить в самодельной раме, которая может быть изготовлена из металлических уголков или профильных труб. Бревно для обработки затем уже укладывается на подготовленные направляющие.
![]()
Схема изготовления пилорамы из бензопилы своими руками.
Создавать чертежи пилорамы из бензопилы своими руками не придется, потому как в сети доступно большое количество идей, подходящих даже для человека без опыта.
Безопасность использования конструкции обеспечивается тем, что не нужно самостоятельно передвигать бревно. Для этой цели служит каретка с пилой, которая, в зависимости от толщины бревна, закрепляется на необходимой высоте. После включения рама перемещается точно, а срез остается аккуратным и получается ровным. Можно эксплуатировать устройство не только для цельного бруса, но и для распиловки доски, с целью заготовки дров.
На заметку! Нужно быть готовым к тому, что в процессе работы будет образовываться большое количество опилок, так как для распиловки используется цепь значительной толщины.
Самодельная лебедка также станет хорошим помощником при строительстве, потому как с ее помощью получится легко поднимать грузы на высоту, перемещать спиленное дерево. Кроме того, применяя лебедку, удастся вытащить застрявшую машину или вытянуть из воды на берег катер. Эффективность работы будет зависеть от передаточного числа редуктора, в некоторых моделях показатель может достигать 1,5 т.
![]()
Пилорама из бензопилы позволит легко и быстро превратить бревна в брус.
Чтобы прибором было удобно пользоваться, потребуется выполнить прочную раму, используя сварочные работы. На раме следует прочно закрепить мотор, редуктор и барабан с системой торможения. Для фиксации рамы на корпусе следует предусмотреть отверстия и проушины, через которые можно будет установить прибор на любую поверхность.
Идеи для начинающих механиков
Навыки механика помогут при изготовлении следующих самоделок, где основой конструкции выступает бензопила:
Пилорама. Двигатель бензопилы нуждается в дополнении металлической рамой. При эксплуатации конструкции заготовки направляют по рельсовому пути. Существуют различные варианты оформления самоделок, которые выполняют функцию пилорамы.
Портативная электростанция. Станет спасительным кругом в местах, отдаленных от линии электропередач. Для изготовления конструкции понадобится генератор, приводной ремень, планка из металла, пульт управления и шестереночный редуктор. Для самоделки оптимально подходят мощные марки бензопил в виде Урала и Дружбы.
Для снегоуборщика понадобится инструмент, мощность которого превышает 3 кВт. Конструкцию оборудуют по своему усмотрению полозьями или колесами.
Снегоход. Конструкция самоделки включает двигатель бензопилы, рулевое управление, раму и гусеницы.
Аэросани смогут передвигаться по заснеженным участкам при условии установки двигателя, мощностью от 12 л.с.
Привлекательной идеей для современных Кулибиных станет создание вертолета ранцевого типа
Здесь важно осознавать опасность, которую представляет конструкция, изготовленная по недостаточно проработанному проекту.
Рекомендации по эксплуатации
Производителям любой техники не очень нравится, когда владельцы вносят различные изменения в конструкцию, расширяют функциональность изделий. Но бензопилы оказались таким благодатным устройством, что из них изобретатели умудрились изготовить множество агрегатов.
Однако, изобретателям следует всегда помнить, что различные модификации снегохода из бензопилы отнюдь не являются полноценным транспортным средством. Передвижение на самоделках вы осуществляете исключительно под личную ответственность. Поэтому следует соблюдать меры безопасности, как на полноценном снегоходе, не перегружать агрегат.
Ну и, конечно, лучше один раз увидеть воочию, чем много раз услышать или прочитать. Вашему вниманию интересные захватывающие видео от народных умельцев разных переделок снегохода из бензопилы.
Косилка
Чаще всего газонокосилку из бензопилы своими руками делают роторного типа. Выглядит она в виде небольшой тележки, на которой смонтированы все агрегаты, детали. Делают ее сварной, используя металлические трубы или полосы. Снизу устанавливают колеса, размер которых должен позволять приспособлению без затруднений перемещаться по любой поверхности.
Есть варианты сенокосилок своими руками из бензопилы, укомплектованные 2, 3 или 4 колесами. Газонокосилка из бензопилы в 2-колесном исполнении обладает лучшей маневренностью, поэтому получила большее распространение. В ней устраивают специальный кожух, который предотвращает соприкосновение работающего агрегата с землей.

Чтобы сделать газонокосилку, с бензопилы вначале демонтируют штурвал и шину. Мотор на раме располагают так, чтобы вал был снизу. Тележку снабжают ручками, которые делают из труб. На них крепят штурвал мотопилы, удлиняют тросик, которым управляется дроссельная заслонка карбюратора.
Дальше для косилки из бензопилы изготавливают узел, которым скашивается трава:
- Вначале к звездочке мотора приваривают отрезок трубы длиной 80 см и диаметром 50 мм.
- Внутри нее располагают другую трубу, которая меньше первой в диаметре на 8 мм.
- Соединяют трубы между собой болтами М6. Трубчатая конструкция позволяет регулировать высоту среза травы.
- На конце широкой трубы приваривают металлический диск толщиной 4 мм и диаметром 18 см.
- К диску крепят ножи-лезвия, изготовленные из старой ножовки. Их ширина — 3 см, длина — 12. Соединение выполняют болтами М6 неплотно, что позволяет предохранить лезвия от поломки при встрече с камнями.
Лебедка
Механизм предназначен для горизонтального перемещения или подъема грузов на высоту. Не зависит от наличия электроэнергии, может использоваться на природе, в туристических походах.
Обязательное условие при этом — мощность двигателя лебедки из бензопилы своими руками не должна быть меньше 2,5 кВт.
Важным элементом устройства является барабан — его изготавливают самостоятельно или используют от ручной лебедки. Кроме того, понадобится:
- редуктор для уменьшения оборотов мотопилы;
- металлические трубы или профильный прокат, рычаг, кулачковые зажимы, хомуты.
Порядок изготовления лебедки:
- Из труб изготавливают жесткую раму. Используют сварку.
- Крепят к ней мотор бензопилы. К нему хомутами подсоединяют редуктор, а к выходному валу последнего — барабан.
- Устанавливают рычаг, оборудованный кулачковыми зажимами, связанными с валом барабана. Этот элемент управления позволяет управлять рабочим процессом: при перемещении рычага в одну сторону включается вращение барабана, в другую — происходит его остановка.
- Изготавливают якорь, которым лебедка будет закрепляться в почве или цепляться за какой-либо неподвижный предмет. Используют заостренные уголки, которые приваривают или присоединяют шарнирами к раме.
- Наматывают на барабан трос, свободный конец которого снабжают крюком. Его применяют для захвата, присоединения к грузу, который нужно перемещать.
Пилорамный станок
Устройство электростанции из бензопилы.
А почему бы не использовать бензопилу для распилки дерева. Хоть из определения бензопилы и следует, что она разрезает древесную породу. Но как повысить качество реза?
Сделав подвижную раму и приладив к ней неплохую бензопилу, можно просто перевоплотить наваленные во дворе бревна в доброкачественную древесную доску либо брус.
Конструктивно пилорама состоит из 2-ух частей – одна держит заготовку и недвижна, 2-ая – позволяет выбирать толщину и направление реза, другими словами она подвижная.
Для облегчения работы можно приладить тросовую лебедку. Для распилки бревна нужно установить бензопилу и начать продвижение рамы параллельно недвижной раме. Чтоб перейти к последующей доске, нужно повторить операцию.
Как сделать мопед из бензопилы или велосипед с мотором
Самодельный мопед из бензопилы вряд ли сравнится с промышленным вариантом прибора, но в качестве своеобразной взрослой игрушки он вполне сгодится. По большому счету приспособление представляет собой не мопед, а велосипед с двигателем от бензопилы. Это связано с тем, что чаще всего применяется именно старая рама от этого транспортного средства.

Мопед с применением бензопилы сможет разгоняться до 30 км/ч
Это интересно! Более продвинутые умельцы берут не готовую раму от старого велосипеда, а самостоятельно изготавливают для этой цели сварную конструкцию из металлических труб или квадратного профиля. А вот основные узлы, включая подшипники, предпочитают использовать заводские.
Перед тем как поставить двигатель от бензопилы на велосипед, следует позаботиться о наличии деталей, таких как:
- рама;
- двигатель с бензобаком;
- редуктор с передаточным соотношением 18:1;
- амортизаторы;
- тормоза.
Любой двигатель на велосипед от бензопилы должен дополняться редуктором, чтобы была возможность регулировать вращение колес. Иногда вместо редуктора применяются зубчатые пары, соединенные между собой цепью от велосипеда. Если за основу брать горный вариант велосипеда, то здесь в большей степени подойдет редуктор с передаточным числом 1:15 или 1:20, дополненный вариатором. Главное преимущество горного велосипеда с мотором от бензопилы состоит в том, что в отличие от обычного устройства его получится разогнать до 30 км/ч.
Другим простым в исполнении транспортным средством считается карт из бензопилы, напоминающий упрощенную модель автомобиля, которая применяется в основном для кольцевых гонок. Прибор лишен цельного корпуса, в нем нет амортизаторов. Минимальное количество деталей позволяет облегчить конструкцию и обеспечить ему большую скорость передвижения.

Для велосипеда понадобиться не только двигатель от бензопилы, но также и редуктор
Рама чаще всего варится самостоятельно из металлопрофиля, а в качестве донора колес используются старые тележки. В качестве привода на заднюю ось применяют велосипедную цепь, а также понадобится рулевая трапеция. Чтобы собрать корпус, потребуется использование сварочного аппарата. Некоторые считают карт, выполненный своими руками, детским автомобилем с бензиновым двигателем, но нужно учитывать, что транспортное средство способно развивать приличную скорость.
Снегоходы
Снегоходы можно сделать в двух принципиально разных исполнениях. В одном случае в качестве движителя применяется воздушный винт (пропеллер), и снегоход называется «аэросани». Он устанавливается на три лыжи. Конечно, это будет игрушка для катания по ровным гладким поверхностям, например по замёрзшему пруду. Для получения более или менее нормальной тяги нужно вращать воздушный винт со скоростью примерно 3 000-5 000 оборотов в минуту. В зависимости от скорости самого двигателя пилы, вполне возможно, для повышения скорости вращения пропеллера придётся устраивать цепной редуктор. Управление по курсу осуществляется поворотом передней лыжи. Сюда можно применить детали передней вилки и руль велосипеда.
ФОТО: nzmetallspb.ruАэросани
В другом случае движителем будет рифлёное колесо, или гусеница, и снегоход получит название «снегокат». Гусеничный движитель придётся сконструировать самому. Для изготовления самой гусеницы можно использовать остатки старого конвейерного полотна. Рулевое управление также можно сделать на базе велосипедного или взять от детской педальной машины.
ФОТО: nzmetallspb.ruСнегокат
В обоих случаях снегоходы следует оснастить механизмами управления газом, тормозом, освещением, звуковой сигнализацией.
Видео: Что Можно Сделать Из Цепи От Бензопилы
Моторный насос. Это, по сути, тот же насос, который работает только на бензиновом или дизельном двигателе. Следовательно, моторный насос также может быть собран из бензопилы. Агрегат состоит из центробежного насоса, имеющего опору, которая используется для крепления пилы, и колеса, которое приводит в движение турбину насоса (шкив).
Как сделать бензопилу и ножевой насос своими руками, очень понятно из следующего видео.
Другие отечественные изобретения описаны более подробно ниже.
Сделай себе бензопилу
В этом устройстве используется газопильный двигатель и двухступенчатая коробка передач. Каркас с его конструкцией можно сваривать из металлического профиля (32х32). Мотор редуктора крепится к поперечным углам верхней рамы. Топливный бак установлен на подставке под углом 15х15.
Сделай себе бензопилу
Для таких самодельных электропил используется металлическая рама, к которой прикреплена пила. Заготовки могут быть ориентированы вдоль дорожки. Существуют разные виды распиловки. Для проектирования агрегата для продольной резки требуется переходник, который крепится к шине, и направляющая, указывающая направление ее движения. Направляющая установлена на плате, которая прикреплена непосредственно к бревну. С помощью этой лесопилки бревна можно разделить на несколько частей (2. 4).
Ручная бензопила
Карта. Это небольшой автомобиль, который не имеет подвески и способен быстро развивать приличную скорость. Такой автомобиль без кузова состоит из следующих основных компонентов:
- Рулевая система.
- Тормозная система.
- Двигатель.
- Шасси.
Домашние карты часто используют двигатель бензопилы. Перед сборкой карты двигатель должен быть подготовлен (удалите все ненужные детали: баки, цепи и т. Д.). Цепные пилы цепной пилы шлифуют, давая звезды правильный размер. Далее идет установка подвески двигателя.
Сделайте самостоятельное вождение с помощью бензопил и других материалов относительно дешево и весело. Хотя процесс складывания карты довольно сложен и требует определенных навыков.
Вы также можете построить багги бензопилой.
Бензопила ATV
Домашний картинг имеет стадии проектирования, которые очень похожи на квадроцикл. С помощью бензопилы вы можете построить детский квадроцикл. Это потребует редуктора или промежуточного вала для увеличения тяги и крутящего момента. Помимо прочего, у детского квадроцикла есть и другие особенности складывания, помимо изготовления карт.
Самодельный снегоуборщик
Snowblower. Это снегоуборщик, который может быть построен на бензопиле мощностью более 3 кВт. Многие мастера не используют колеса, но устанавливают самые простые коньки из саней. Особенно важным при создании такой сборки является установка винтовой сборки, которая приводится в движение зубчатой парой и цепью. При изготовлении лопастей используют резину, в конструкции впускного устройства. Стальную. Установленная на заборе пластиковая канализационная труба может служить снегоуборщиком.
Прекрасно справляется с двигателем бензопилы
Велосипед может быть оснащен мотором бензопилой. Такой мотоцикл может разгоняться до 50 км / ч, а иногда и выше. Конструкция этого транспорта требует от 1,5 до 2 л.С. Бензопилы. Этого достаточно, чтобы развивать скорость 30. 40 км / ч. Конечно, вам нужен бак, который используется в качестве бензобака, вы не можете обойтись без проводов и выключателя для подключения зажигания двигателя и тому подобного.
Велосипед бензопилой потребляет минимальное количество топлива.
Как сделать мотоцикл из бензопилы, различные мастера в интернете расскажут подробно.
Самодельная лебедка
В самоходной лебедке вы можете использовать бензиновый пылесборник, мощность которого зависит от тягового усилия всего агрегата. Кроме того, бензопила оснащена:
Самокат с мотором бензопилы
Двигатель бензопилы также может быть установлен на самодельный скутер. Двигатель должен быть подготовлен: пильная шина и цепь должны быть сняты. Другие компоненты остаются нетронутыми. Сохранившийся корпус двигателя облегчает крепление к платформе скутера.
Бензопилы могут быть самыми разными. Они являются помощниками по дому, чтобы помочь сэкономить ваш бюджет. Однако, чтобы создать безопасное устройство, вы должны обладать некоторыми навыками и знаниями
Поэтому важно, чтобы товары для дома действительно делались мастерами
Правила безопасной эксплуатации бензопилы
Как работать бензопилой? Этот вопрос волнует каждого, кто только недавно приобрел высокотехнологичный чудо-агрегат. Многие отбрасывают инструкцию, полностью полагаясь на свою смекалку. И делают критическую ошибку, которая может привести либо к поломке устройства, либо к серьезной травме. Мануал следует изучить обязательно.
Подготовка к работе
Перед началом эксплуатации убедитесь в правильном натяжении цепи агрегата. Слегка потяните за верхние звенья – хвостовик должен на несколько миллиметров выйти из паза шины. Следите за тем, чтобы нижние звенья не провисали. Затем следует потянуть цепь рукой – она должна тянуться легко. Ослабьте цепь, если натяжение очень сильное. Убедитесь в том, что инерционный тормоз находится в правильном положении – его ручка не должна касаться основной рукоятки. В случае если вы включите бензопилу, а инерционный тормоз будет смещен, то это может привести к высадке сцепления.
Если пила успешно запустилась, смело приступайте к работе!
После того как вы проверите натяжение цепи, приступайте к заправке устройства. Установите бензопилу на горизонтальной поверхности. Залейте ее топливом и маслом для смазывания цепи и двигателя. Идеальный вариант – это топливная смесь из бензина и адгезионного масла, не ниже девяносто второй марки. Для цепи и мотора лучше выбрать специальную смазку, которая предназначена для бензопил. Компоненты этой смазки гарантируют долгую жизнь деталей двигателя и режущего элемента.
После того, как вы сделаете все вышеописанные процедуры, осуществите запуск пилы. При этом двигатель должен быть холодным. Положите пилу на землю и убедитесь в ее устойчивости. Тормоз следует выключить, а зажигание включить. Затем удерживайте переднюю ручку левой рукой. На заднюю ручку поставьте правую ногу. Для того чтобы запустить двигатель потяните стартер. Инерционный тормоз следует также отключить, а затем три или четыре раза нажать на газ, для того чтобы двигатель прогрелся. Проверьте, поступает ли масло к цепи
Если все в норме, то можете осторожно приступать к работе
Техника безопасности и общие рекомендации
Перед началом рабочего процесса следует ознакомиться с рядом правил по использованию этого инструмента. Удерживайте бензопилу обеими руками, крепко обхватите пальцами рукоятки агрегата. Большой палец должен располагаться под передней рукояткой устройства. Ни в коем случае не стойте прямо за бензопилой. Оптимальное положение – чуть сбоку от самого инструмента
Безопасная работа бензопилой
При работе спина должна быть всегда выпрямлена. Для того чтобы сохранить равновесие, расставьте ноги как можно шире. Не забывайте ставить бензопилу на тормоз во время передвижения. Несоблюдение этого правила может привести к серьезным травмам
Начинайте пилить краем шины. В случае если вы будете периодически пользоваться бензопилой, купите защитную одежду, состоящую из шлема с маской, яркой защитной курткой и штанами, которые будут вас защищать от резов пилы.
Путь к бессмертию
В США учёный читал лекции в университетах, работал научным сотрудником в НАСА и в Национальном исследовательском совете, стал директором Международного космического агентства и председателем секции космических полетов.
По состоянию на 2011 год Болонкину принадлежит более 170 научных трудов и 17 запатентованных изобретений, а также книга-автобиография «Записки политзаключённого». С тех пор информации о нём нигде нет. Однако летом этого года в американских СМИ вспомнили, что когда-то Александр Болонкин предложил способ «воскрешения» людей при помощи е-бота, который создаст виртуальный образ умершего человека.
Александр Болонкин, май 2017 года. Фото: facebook.com/maximus.yaney.18
Сегодня над этой теорией, предложенной экс-заключённым из Южлага, всерьёз задумываются американские исследователи.
Чем и как точить
Для затачивания цепи применяют напильник, болгарку или спецстанки. Каждый способ требует соблюдения определённой технологии.
Набор напильников
Заточку проводят готовым или самостоятельно собранным комплектом
В комплект входят:
- Круглый и плоский напильники.
- Ограничительный шаблон.
- Крючок для прочистки.
- Державку, регулирующую положение напильников.
Инструменты приобретают по отдельности или в готовом комплекте, подобранном к цепи с определённым шагом
Чтобы правильно выбрать набор, важно знать его параметры
Круглый напильник подбирают по овалу в корпусе звена. На непрофессиональных пилах диаметр зуба цепи не бывает больше 5,5 мм, поэтому более габаритные напильники не применяют.
Процесс затачивания выглядит так:
- Пилу устанавливают на ровную поверхность.
- Сначала проводят осмотр цепи на предмет сломанных звеньев, затем фиксируют её тормозом.
- По нанесённым разметкам на верх ограничителя и зуба устанавливают державку: она помогает удержать напильник на высоте 1/5 над лезвием.
- Начинают с наиболее низкого зуба. Остальные звенья подгоняют под него. Напильник перемещают изнутри наружу. Располагают его параллельно нанесённой на цепь метке. Зубья затачивают равным количеством движений с одинаковым нажимом.
- Затем точат ограничители. Устанавливают шаблон, чтобы ограничитель попал в отверстие, и стачивают выбивающиеся из него кромки плоским напильником.
Заточка болгаркой
Применять УШМ стоит только в крайних случаях, когда нет времени на долгую работу напильником. Обработанная болгаркой цепь не будет заострена идеально, но работоспособность пилы восстановить можно. Недостаток метода в чрезмерном перегреве зубьев во время затачивания. В результате металл становится хрупким, и срок службы цепи резко сокращается.
Для процесса понадобится:
- УШМ, желательно небольшого размера и мощности.
- Отрезной круг толщиной 2–3 мм.
- Тиски для жёсткого закрепления болгарки на поверхности.
Инструкция выполнения заточки:
- УШМ крепят тисками, чтобы диск встал вертикально и не прикрывался кожухом.
- Включают болгарку и поочерёдно затачивают звенья.
Заточка болгаркой крайне травмоопасна, поэтому новичкам применять её не стоит.
Работа на станке
Самую качественную заточку можно произвести на спецстанках 2 видов:
- Механический – это устройство, которое крепится на шине. Мастеру достаточно продвинуть напильник несколько раз по отрегулированной направляющей, затем переставить его на следующее звено. Приспособление не требует настройки и контроля угла, поскольку всё сделано заранее.
- Электрический – состоит из направляющей и расположенным над ней затачивающим диском. Цепь снимают и вставляют в направляющую. Мастеру достаточно опускать диск на зубья, передвигая их в нужное место.
Электрический станок обладает явным преимуществом. Качество заточки и её равномерность на зубцах гарантирована, поэтому с работой справится даже не имеющий навыков работы напильником владелец пилы
Станок позволяет менять угол заточки, что необходимо для подготовки пилы к работе с древесиной различного качества. Твёрдое дерево требует меньшего угла, мягкая – большего.
Специалист по затачиванию цепей Владимир из Днепра утверждает, что при наличии навыков выполнение процесса вручную напильником позволяет получить более качественный результат. Станок даёт только 30 градусов по горизонтали и 45 – по вертикали, звенья в процессе заточки перегреваются, поэтому изнашиваются в 2 раза быстрее. Использование напильника обеспечивает более бережное затачивание и продлевает срок эксплуатации цепи.
Система PowerSharp
Оригинальное приспособление, позволяющее затачивать специальную цепь прямо на пиле за несколько секунд. С её появлением процесс восстановления работоспособности пилы стал максимально быстрым и простым.
Система состоит из следующих деталей:
- Цепь PowerSharp. Модель оснащена сверхзаточенными резчиками с алмазным покрытием. За счёт профилированных соединительных звеньев она качественно пилит древесину и великолепно отводит стружку.
- Пильная шина со специальными пазами-отверстиями;
- Заточное устройство – пластмассовый блок с установленным внутри брусом на основе абразивов. Брус рассчитан на срок эксплуатации цепи и заменяют их одновременно.
Процесс затачивания:
- Шину надевают на штыри в точильном устройстве.
- Прижимают упор точильного устройства к любой твёрдой поверхности.
- Запускают пилу на максимальных оборотах на 5 секунд.
Целесообразность самостоятельного ремонта

Специалисты советуют с минимальными потерями качества расклепать и отремонтировать поврежденную цепь, используя технический потенциал сервисной мастерской. Несмотря на заверения производителей о проблемах и сложности самостоятельного ремонта, значительная часть пользователей предпочитает осваивать приемы восстановления работоспособности пильных гарнитур самостоятельно.
Причина этого явления:
- проживание владельца на большом удалении от пунктов сервисно-технического обслуживания;
- высокая стоимость предоставляемых службами ремонтных услуг;
- отсутствие нужного оборудования.
Компенсировать укорачиванием естественный износ цепи не целесообразно и небезопасно. Эксплуатация пильной гарнитуры с растянутой цепью неизбежно сопровождается:
- форсированным износом шины и венца приводной звездочки;
- увеличением нагрузки на двигатель;
- повышенной травмоопасностью распиловочных работ разных уровней сложности.
Для чего используют бензопилу
Вне зависимости от технических характеристик, модели и бренда производителя, бензопилы используются для:
- Спиливания деревьев в лесу (заготовка пиломатериалов для различных целей).
- Для распиловки спиленных деревьев.
- При выполнении различных видов строительных работ, связанных с деревом (деревянное домостроение, монтаж стропильных систем, ремонт деревянных конструкций и т.д.).
- При работе в саду и приусадебном хозяйстве.
- При устранении природных катаклизмов и прочих аварийных работах, выполняемых службами МЧС.
- При изготовлении деревянных скульптур и иных элементов декорирования придомовых территорий и зон отдыха различного типа.






























